 
			 
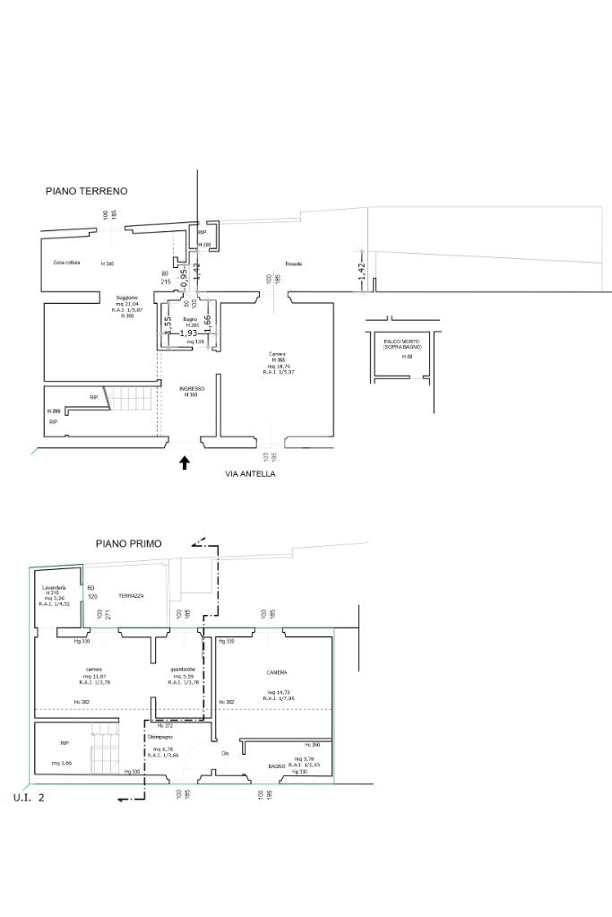
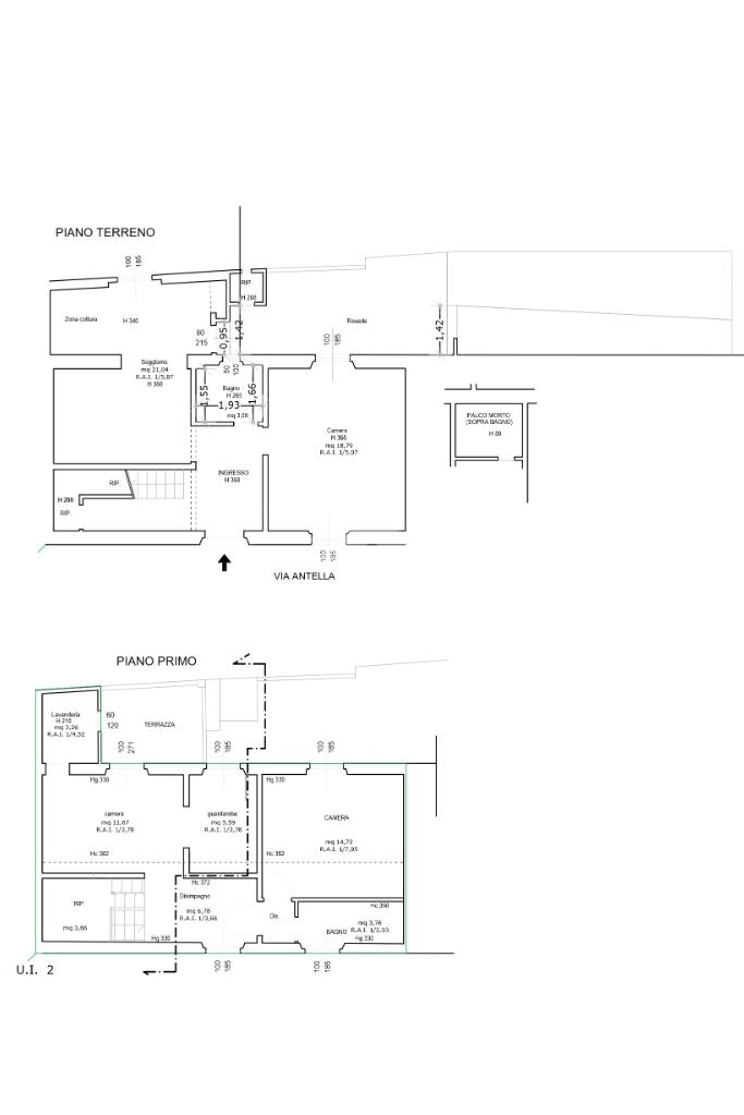
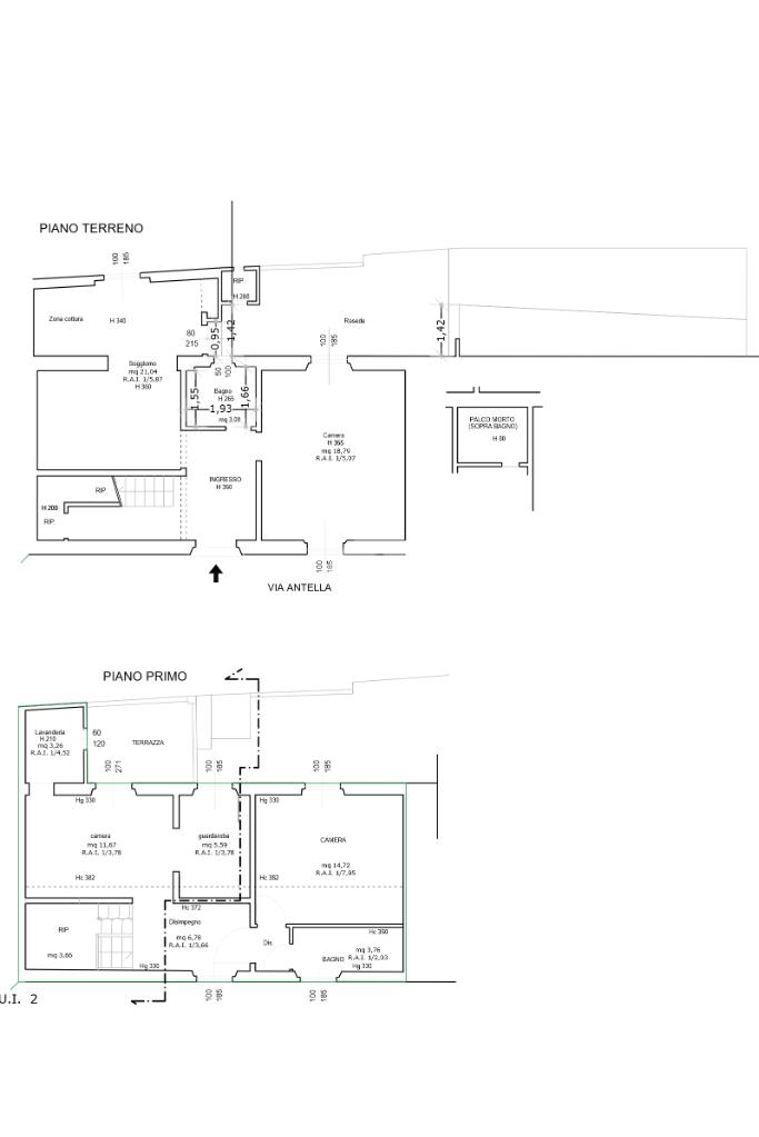
				ANTELLA -  posizione comoda a due passi da Piazza Peruzzi, proponiamo splendido terratetto d'epoca appena ristrutturato.
Al piano terra l'ampia zona giorno composta dall'ingresso che suddivide gli ambienti: il soggiorno luminoso, un primo bagno finestrato e la cucina-tinello dalla quale si accede al resede di 50mq. 
Si accede al piano superiore grazie alla caratteristica scala in pietra serena che ci accompagna nella zona notte, dal volume del vano scala è stato ricavato un comodo soppalco. 
La zona notte è composta da due camere matrimoniali entrambe luminose: una è accessoriata di una stanza da adibire a cabina armadio o studio, una piccola zona toilette (con predispozioni fatte per diventare bagno) ed un delizioso terrazzo abitabile, l'altra camera matrimoniale si trova accanto al bagno finestrato. 
L'immobile stato appena ristrutturato: tetto, facciate e fosse biologiche restaurate, infissi e Impianti (idrico, d'aria condizionata, termico e elettrico) nuovi.
L'immobile inoltre è già predisposto per esser frazionato in due unità.
Prezzo ridotto di €1 (5%%)
Ti interessa visionare l'immobile?