Villa a schiera in vendita

Greve In Chianti, Via pio la torre - Chiocchio
€ 310.000
4 locali 4 locali
100 Mq 100 Mq
2 bagni 2 bagni

Villa a schiera in vendita

Greve In Chianti, Via pio la torre - Chiocchio

Descrizione annuncio

CHIOCCHIO- Greve in Chianti, in una posizione tranquilla e immersa nelle campagne chiantigiane a soli 12 km dal paese di Grassina e 7 dal paese di Greve.
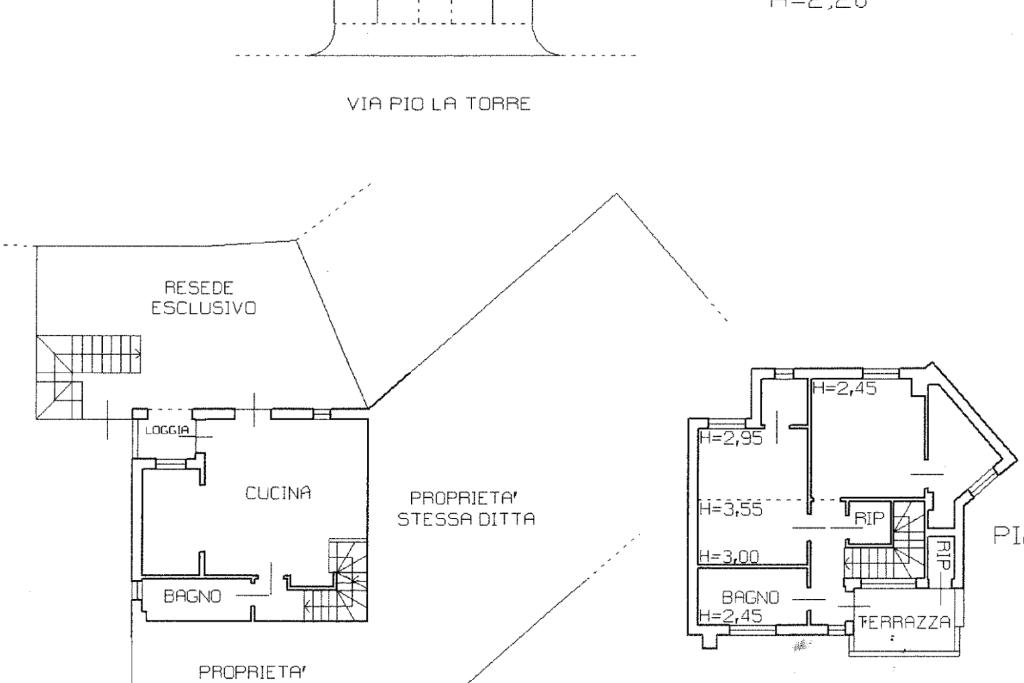
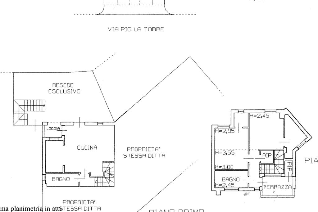
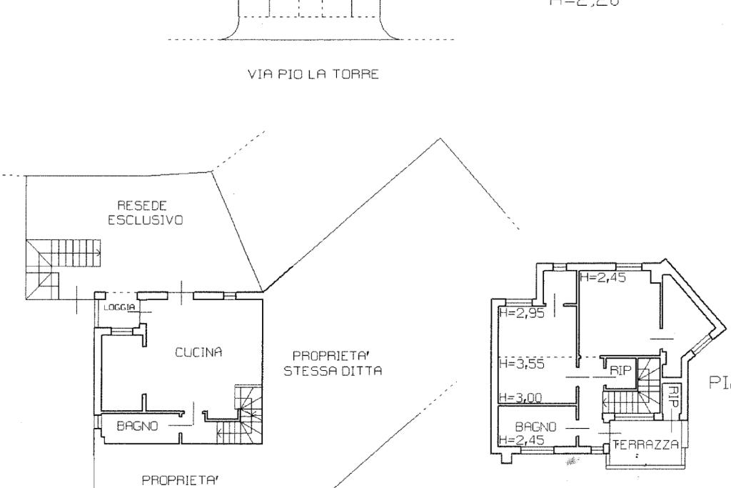
Proponiamo in vendita ottimo terratetto su due livelli di recente costruzione.

Tramite l'ingresso indipendente accediamo al resede piastrellato di proprietà, ottimo per i momenti di relax in famiglia.

Al piano terra della villetta troviamo la zona giorno, accessoriata di caminetto, con cucinotto a vista sul living e un primo bagno finestrato.

Salendo dalle scale interne ci troviamo nella zona notte così composta: Camera matrimoniale con spazio guardaroba, camera matrimoniale con spazi accessori, un ulteriore bagno finestrato e una pratica terrazza a tasca con vista sulla vallata.

Completa la proprietà un box e una cantina collegati direttamente alla casa tramite scala interna.

Costruita nel 2005, la villa è dotata di moderni comfort come aria condizionata e sistema di allarme, garantendo sicurezza e benessere. Questa soluzione abitativa rappresenta un'opportunità per chi cerca una residenza in una zona tranquilla e immersa nel verde del Chianti.

Mostra tutto

Nelle vicinanze

Trasporto pubblico Trasporto pubblico
Trasporto pubblico
2,4 Km
Scuole Scuole
Scuola elementare
2,2 Km
Farmacia Farmacia
Farmacia
2,5 Km
Supermercati Supermercati
Supermercato
2,3 Km
Negozi Negozi
Negozio alimentari
2,4 Km
Panificio
2,5 Km
Ristoranti Ristoranti
Locanda il Gallo
150 m
Giardino di Strada
2,0 Km
Fattoria S.Stefano a Collegalle
2,3 Km
Ristoranti
3,0 Km
Mostra tutto

Caratteristiche

Rif.:
61144899
Piano:
Su più livelli
Box:
1
Terrazzi:
1
Camere da letto:
2
Arredamento:
Assente
Mostra tutto
Prezzo Prezzo
€ 310.000
Rata mutuo Rata mutuo
€ 1.462 / mese
Spese annue Spese annue
€ 0
Proponi il tuo prezzoProponi il tuo prezzo

Classe Energetica

F
F
F
F
F
F
F
F
F
EP globale non rinnovabile:
168.30 kW h/m² anno
EP globale rinnovabile:
168.30 kW h/m² anno
EP invernale del fabbricato:
EP estiva del fabbricato:
Anno di costruzione:
2005
Riscaldamento:
Autonomo
Tipo impianto:
A radiatori
Tipo alimentazione:
Metano

Ti interessa visionare l'immobile?

Fissa un appuntamento  Fissa un appuntamento

Richiedi informazioni

Clicca su Leggi per aprire l'informativa
* Questi campi sono obbligatori

Calcola il tuo mutuo

Semplice e senza impegno
Anticipo

( % )
Mutuo

( % )

pochi semplici passi

inserisci i tuoi dati
Questionario completato
Grazie per aver richiesto un appuntamento senza impegno con un nostro Consulente del Credito e Assicurativo.

Hai inserito correttamente tutti i dati necessari e a breve riceverai una e-mail con un link da convalidare per inviare i tuoi dati.
Affiliato
Studio Grassina Sas
Via Chiantigiana, 223 50012 Bagno A Ripoli (FI)

Il nostro staff


  • Giorgio Majone
    Affiliato

  • Giulia Grassi
    Coordinatrice
Via Chiantigiana, 223 50012 Bagno A Ripoli (FI)
Zona: Grassina-Ponte a Ema-Antella
Mostra su mappa
Orari: 09.00 - 13.00 15.30 - 20.00 sabato chiusura ore 18:00
Affiliato
Studio Grassina Sas
Via Chiantigiana, 223 50012 Bagno A Ripoli (FI)

2025 Tecnocasa Franchising S.p.A. - P. IVA 08365160152 - Via Monte Bianco 60/A 20089 Rozzano (MI). Ogni agenzia ha un proprio titolare ed è autonoma. Privacy policy | Policy utilizzo | Cookie policy